Location: Dorking, Surrey
Size: 2,419 sq/ft
Years lived in: Zero – the client had just purchased the property
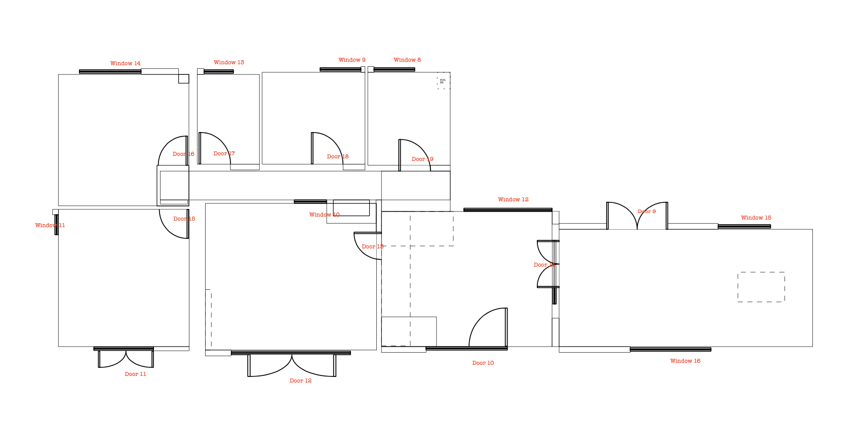
The client had recently bought the property, however, the layout was completely wrong for her family. With toddler twin boys the idea of an upstairs lounge, a separate dining area and kitchen just didn’t gel with a young family. The idea was to completely redesign the whole of the layout, very few of the internal walls would stay where they were as we took the muddled layout to create a new open plan kitchen, dining, playroom and lounge on the west side of the property. This would also mean it would easily meander out to the extremely large garden and grounds that was on that side of the house rather than the smaller back garden.
The east side of the house would then go from a kitchen to a guest wing, with a new extension creating a U shape to the house and enclosing a small garden area. The upstairs area would then be the families retreat, 3 bedrooms and 2 bathrooms away from the hustle and bustle of the rest of the house. This was a big project for our client and they wanted to make sure that it came in on budget, so we were able to coordinate the entire project from start to completion.
The client had a really great idea of the Scandi-Japanese inspired palette they wanted. They wanted the property to feel calm, something that I am sure every parent of twin toddlers can completely understand! Upstairs a master suite with walk-in wardrobe and luxury ensuite will be a distinctly adult space, providing a child-free respite. The boys will each have a room, with windows overlooking the rolling hills as well as plenty of storage and play space, designed to grow with them and eventually become cosy teenage dens with room for larger beds and study areas.
A large number of our homes are created for young growing families. Little people require a special kind of design, a design that evolves with them as they grow older. The client really wanted to achieve a home that made their
The property is located in an Area of Outstanding Beauty and so did require planning permission. Thankfully we were able to work with the local council to make sure that the property was exactly within the guidelines by going through pre-planning and discussing their requirements in detail. This meant that the planning permission wasn’t an issue at all.
One of the sticking points when looking at a Scandi-Japanese palette was to decide whether to go with a lighter or darker floor. Thankfully these 3D sketches made the decision an easy one for the client and she was instantly drawn to the lighter colour oak flooring.
As you can see from the layout the main area of the house is divided into different zones; an open plan kitchen, dining area, TV area and relaxed lounge. This is the plan for the future once the children are a little older. At the moment the relaxed lounge is the children’s play area and will be really easy to amend once when are a little older. The design wasn’t built simply for today, it was built for the family to live and grow together.
The materials throughout were designed to bring together sleek edges with Scandinavian charm. The client absolutely loved how space flowed together as did the judges at The Designer Awards as this living area was a finalist for Living Space Design of the Year 2019.